弱电工程门禁系统安装图解及闭门器安装方法
前言:
智能化小区出入管理一般在小区大门 栅栏门 电动门,单元的铁门防火门 防盗门上安装门禁系统. 可以有效地阻止闲杂人员进入小区,有效地对小区进行封闭式管理。
正文:
1. 门禁控制器 是门禁系统的核心部分,它负责整个系统输入、输出信息的处理和储存,控制等等。
2.读卡器(识别仪) 读取卡片中数据(生物特征信息)的设备。
3.电控锁 门禁系统中锁门的执行部件。用户应根据门的材料、出门要求等需求选取不同的锁具。
主要有以下几种类型:
(1)电磁锁:电磁锁断电后是开门的,符合消防要求。并配备多种安装架以供顾客使用。这种锁具适于单向的木门、玻璃门、防火门、对开的电动门。
(2) 阳极锁:阳极锁是断电开门型,符合消防要求。它安装在门 框的上部。与电磁锁不同的是阳极锁适用于双向的木门、玻璃门、防火门,而且它本身 带有门磁检测器,可随时检测门的安全状态。
(3) 阴极锁:一般的阴极锁为通电开门型。适用单向木门。安装阴极锁一定要配备UPS电源。因为停电时阴锁是锁门的。
4. 卡片 开门的钥匙。可以在卡片上打印持卡人的个人照片,开 门卡、胸卡合二为一。
5. 其它设备 出门按钮:按一下打开门的设备,适用于对出门无限制的情况。
门磁:用于检测门的安全/开关状态等。
电源:整个系统的供电设备,分为普通和后备式(带蓄电池的)两种。
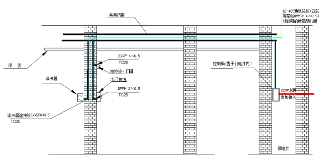
下面是门禁系统中的各种安装示意图。最全的门禁安装大样图、管线图、系统图、电锁安装图。


门禁安装大样图




门禁设备安装三视图



电锁安装图
闭门器五种安装方法
1、标准安装
闭门器本体安装在拉门侧,支臂安装在门框上。这种安装方式适合于门框较窄,没有足够的空间安装闭门器。这种安装方式还适用于开门方向没有障碍物门开到足够大的角度时,闭门器也不会撞击到外物。

2、上门框安装
闭门器安装在推门侧,支臂安装在门上。这种安装方式适用于门框较宽,有足够的空间安装闭门器。与标准安装比较,这种安装方式适用于开门方向有墙等障碍物。与标准安装比较,这种安装比较,这种安装方式的关门力较大,适用于更大更重的门。
3、平行安装
闭门器安装在推门侧,平行板安装在门框上。这种安装方式适用于门框很窄,或者几乎没有门框你照这种方式安装后,由于没有突出的连杆与摇臂,所以较美观。与标准安装比较,这种安装试适于开门方向有墙等障碍物。与标准安装比较,这种安装的关门力较小。
4、隐藏安装
这种安装方法对隐藏式闭门器,安装方法与滑轨安装相同。与前三种安装方法对比,这种安装方式关门力最小。依照这种方式安装后,门在关闭的状态没有外露的部件,所以最美观。这种安装方式最为复杂,最好需要专业人士来安装。这种安装方式要求与门框间有较大的缝隙,一般为10MM(或者安装时去掉门上部的材料,增大间隙)。门的厚度超过42MM。
5、滑轨安装
一般闭门器安装在门上,滑轨安装在门框上。闭门器可以在门的两侧。与前三种安装方法对比,这种安装方式关门最小。依照这种方式安装后,由于没有突出的连杆与摇臂,所以美观。
闭门器的安装步骤

1、安装前一定要细看安装说明书,并且一定不要忘记装上塑料盖,它可以用来接住闭门器漏出的液压油。方向、关门力量的大小及闭门器机身、连接座与门铰链间的安装尺寸来确定安装位置。
2、根据关门力量大小的要求,通过将连接座反转180°或改变连接杆与连接座间的连接位置,可改变关门力量。调整连接杆与门铰链中心线的距离越大,则闭门器的关闭力量越小,反之力量越大。
3、根据安装说明书的指示,确定安装螺钉的位置,然后钻孔、攻丝。
4、在确定螺钉的安装位置之后,用螺钉安装闭门器机身。
5、安装固定连接座;然后用螺钉安装驱动板。
6、将调整杆调节到与门框成90°,然后把连接杆与驱动板连接在一起;并装上塑料盖,它可以用来接住闭门器漏出的液压油。
7、安装完毕后,检查各固定螺钉是否紧固,不得有松动或不牢固的现象。将门开启至最大开门位置,检查闭门器的铰接转臂是否与门或门框相碰或摩擦。
8、根据需要调整闭门器的关门速度。通常闭门器有2个调速(节流阀芯)螺钉。上方的调节螺钉为第一段关门速度调节螺丝,下方的调节螺丝为第2段(通常是10º)关门速度调节螺丝。
注意事项:
A、外装式门顶闭门器不适用于双向开启门。
B、速度调节螺钉控制门的开关速度。顺时针旋转为慢,逆时针旋转为快。
C、其余各处螺钉和密封零件不可随意拧动,以防漏油。

